
901 S 4th St Apt 26
Lafayette, IN 47905
Building Type
Apartment
Building Style
Unknown
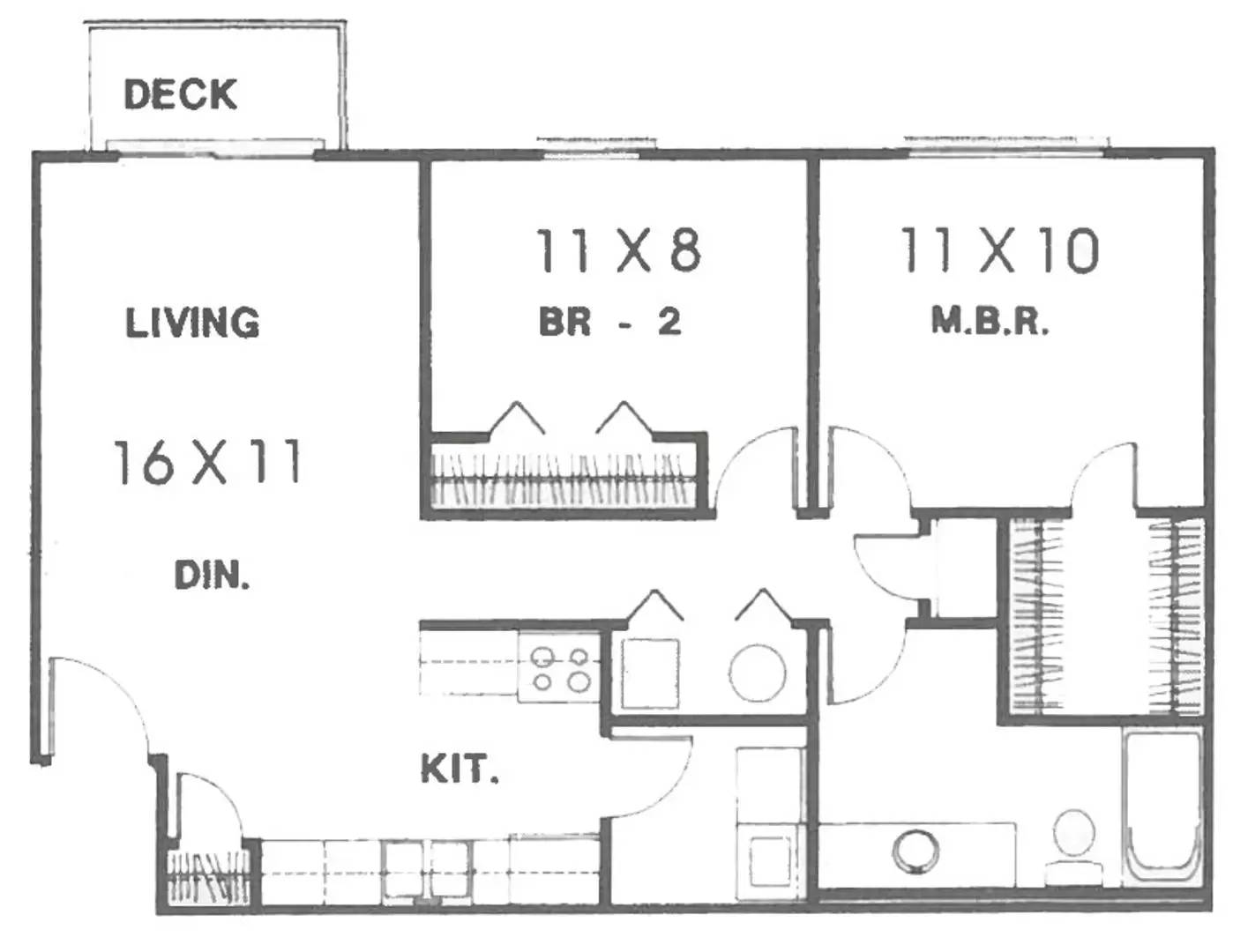
Bedroom / Bathroom
2 / 1
Sqft
827 ft
Gallery of Shoshone Apartments

Amenities
Security & Services
- Emergency Maintenance
Technology
- Tenant Portal
Laundry
- Washer & Dryer In Home
- Washer & Dryer Hookup
Kitchen Features
- Range/Cooktop/Oven
- Refrigerator
- Garbage Disposal
- Dishwasher
- Microwave
Related Companies
Related Building Pages
Listing History
$995 - J and G Capital LLC
Listed on October 20, 2025
$995 - J and G Capital LLC
Listed on October 20, 2025