Is this a fair market price?
Is this a fair market price?
Pet Policy

Have a pet?
Tell us about your furry (or feathered) friend so we can find homes that fit.
Want an ad-free experience?
Features
Tell us what things you at 1120 Sunford Ave SE.
Internet Options
Check prices of all available internet options at 1120 Sunford Ave SE.
Description
Property Id: 2162487
Beautiful Townhome, Great Neighborhood!!!
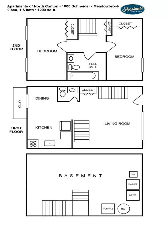
Fantastic, well laid out Townhome for rent. This 1200 sf townhome is located in a quite neighborhood at the corner of Sunford Ave SE, and Schneider Ave NE. Enter your townhome to a large living room that has carpet throughout. Past the living room is a large dining area and fully equipped kitchen. There is also a nice half bath off the dining area. Off the dining area, enjoy your private patio as well as access to a full private basement that has washer and dryer hookups.
Stairs off the living room lead up to the second floor. There is two large bedrooms, with a full bath on the second floor. Each bedroom has plenty of closet space.
This townhome has plenty of parking as well as an assigned carport.
Property Id: 2162487
Beautiful Townhome, Great Neighborhood!!!
Fantastic, well laid out Townhome for rent. This 1200 sf townhome is located in a quite neighborhood at the corner of Sunford Ave SE, and Schneider Ave NE. Enter your townhome to a large living room that has carpet throughout. Past the living room is a large dining area and fully equipped kitchen. There is also a nice half bath off the dining area. Off the dining area, enjoy your private patio as well as access to a full private basement that has washer and dryer hookups.
Stairs off the living room lead up to the second floor. There is two large bedrooms, with a full bath on the second floor. Each bedroom has plenty of closet space.
This townhome has plenty of parking as well as an assigned carport.
Walk Score ®
The Places You'll Go
No nearby places yet
Add places that are important to you



