Pet Policy

Have a pet?
Tell us about your furry (or feathered) friend so we can find homes that fit.
Features
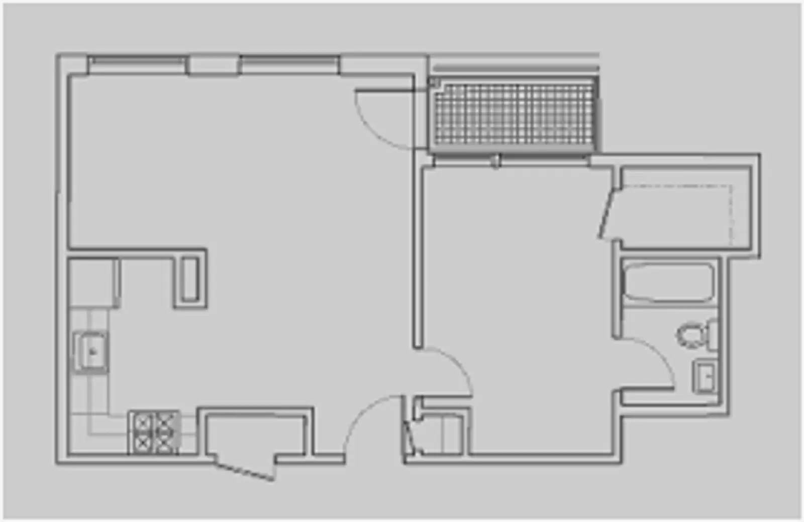
Tell us what things you at 314 Carroll St NW Apt 310.
Internet Options
Check prices of all available internet options at 314 Carroll St NW, Apt 310.
Description
Combining the highest standards of sustainable construction with beauty, comfort, and convenience, Elevation 314 is a state-of-the-art property that boasts a geothermal heating and cooling system along with a green roof and rainwater bio-retention system. Since its opening in 2004, Elevation 314 has provided a green alternative for Washington area renters. It has also been featured in the Washington Post and other publications and has received some wonderful awards.
Located across the street from the Takoma Metro Station in the lovely area of Takoma, DC, Elevation 314 contains carefully rendered spaces organized around a landscaped courtyard. The materials that define these spaces are both beautiful and sustainable; the systems that support them are the most efficient currently available. The building's 52 spacious one- and two-bedroom apartments include balconies, hardwood floors, large windows and 10-foot-high ceilings. At street level, two shops offer walkable retail to the Takoma community.
Formerly a brown field, the parcel of land now occupied by Elevation 314 sat vacant for over 20 years. But its location opposite the metro station meant the site could play a pivotal role in improving the neighborhood. Elevation 314's thoughtful design maximized the blighted lot's potential and transformed it into a thriving urban habitat.
What's in a name? Elevation 314 refers to both our street address (314 Carroll Avenue) and our elevation (314 feet above sea level). Takoma is one of the highest natural points in the District and was first developed as a retreat from the sultry city. Takoma's founder chose a name derived from an American Indian word meaning "high up, near heaven." Elevation 314 provides the clean air and healthy living originally intended by the name Takoma.
Additional charges may apply:
Combining the highest standards of sustainable construction with beauty, comfort, and convenience, Elevation 314 is a state-of-the-art property that boasts a geothermal heating and cooling system along with a green roof and rainwater bio-retention system. Since its opening in 2004, Elevation 314 has provided a green alternative for Washington area renters. It has also been featured in the Washington Post and other publications and has received some wonderful awards.
Located across the street from the Takoma Metro Station in the lovely area of Takoma, DC, Elevation 314 contains carefully rendered spaces organized around a landscaped courtyard. The materials that define these spaces are both beautiful and sustainable; the systems that support them are the most efficient currently available. The building's 52 spacious one- and two-bedroom apartments include balconies, hardwood floors, large windows and 10-foot-high ceilings. At street level, two shops offer walkable retail to the Takoma community.
Formerly a brown field, the parcel of land now occupied by Elevation 314 sat vacant for over 20 years. But its location opposite the metro station meant the site could play a pivotal role in improving the neighborhood. Elevation 314's thoughtful design maximized the blighted lot's potential and transformed it into a thriving urban habitat.
What's in a name? Elevation 314 refers to both our street address (314 Carroll Avenue) and our elevation (314 feet above sea level). Takoma is one of the highest natural points in the District and was first developed as a retreat from the sultry city. Takoma's founder chose a name derived from an American Indian word meaning "high up, near heaven." Elevation 314 provides the clean air and healthy living originally intended by the name Takoma.
Additional charges may apply:
Walk Score ®
The Places You'll Go
No nearby places yet
Add places that are important to you



















