Is this a fair market price?
Is this a fair market price?
Pet Policy

Have a pet?
Tell us about your furry (or feathered) friend so we can find homes that fit.
OR, TN, TX, UT, VA, WATotal Units44,043
Features
Tell us what things you at 9901 Ceja Vista Rd SW Apt B311.
Internet Options
Check prices of all available internet options at 9901 Ceja Vista Rd SW, Apt B311.
Description
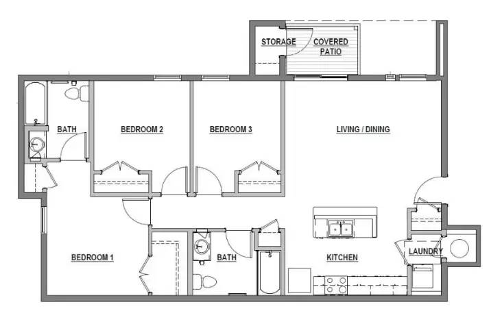
Meet Valle De Atrisco Apartments, an affordable community in Albuquerque, New Mexico. We offer pet-friendly one, two, and three-bedroom layouts that feature a flawless design with some amazing amenities!
Additional charges may apply:
Meet Valle De Atrisco Apartments, an affordable community in Albuquerque, New Mexico. We offer pet-friendly one, two, and three-bedroom layouts that feature a flawless design with some amazing amenities!
Additional charges may apply:
Walk Score ®
The Places You'll Go
No nearby places yet
Add places that are important to you





